Description
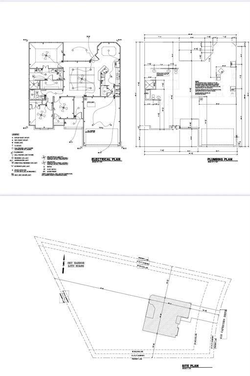
Motivated Seller! Lots 416"418 are being sold together, offering a spacious parcel with excellent features already in place. The property includes a poured slab foundation, fill dirt, and a professionally constructed retaining wall"saving you both time and money in the building process. Even better, the original blueprints designed specifically for the slab are included with the purchase.Whether youre a builder looking for a ready-to-go project or an individual eager to design your dream home, this property provides a head start. Located in the desirable Granbury area, youll enjoy the convenience of nearby amenities while still having the peace and charm of a residential community.Dont miss this chance to bring your vision to life on a lot thats already prepared for construction!
-
0BEDS
-
0.07ACRES
-
0BATHS
-
01/2 BATHS
School Information
Description
Motivated Seller! Lots 416"418 are being sold together, offering a spacious parcel with excellent features already in place. The property includes a poured slab foundation, fill dirt, and a professionally constructed retaining wall"saving you both time and money in the building process. Even better, the original blueprints designed specifically for the slab are included with the purchase.Whether youre a builder looking for a ready-to-go project or an individual eager to design your dream home, this property provides a head start. Located in the desirable Granbury area, youll enjoy the convenience of nearby amenities while still having the peace and charm of a residential community.Dont miss this chance to bring your vision to life on a lot thats already prepared for construction!
© 2026 North Texas Real Estate Information Systems. All rights reserved. IDX information is provided exclusively for consumers' personal, non-commercial use and may not be used for any purpose other than to identify prospective properties consumers may be interested in purchasing. Information is deemed reliable but is not guaranteed accurate by the MLS or One West Real Estate Co.. The data relating to real estate for sale or lease on this web site comes in part from NTREIS. Real estate listings held by brokerage firms other than One West Real Estate Co. are marked with the NTREIS logo or an abbreviated logo and detailed information about them includes the name of the listing broker. Data last updated 2026-03-07T12:43:48.997.

Listing information © 2026 North Texas Real Estate Information System.